
本公司載貨電梯利用微機控制技術,采用高強度的型材設計制造的橋廂,可在各種惡劣環境下進行貨物運輸的工作。公司載貨電梯執行GB7588《電梯制造與安裝安全規范》現行國家標準。安全可靠、結構強度高、經久耐用、運行平穩、開門距大、性價比高等優點,使本公司貨梯成為工廠、倉儲、百貨商城、物業中心等單位運輸貨物的理想選擇。
多種開門方式
為了滿足用戶的不同進出要求,本公司載貨電梯有中分門、中分雙折門、旁開門、貫通門以及三開門五種開門方式供選擇,與工廠、倉儲、百貨商場、物業中心等建筑物結構靈活匹配。

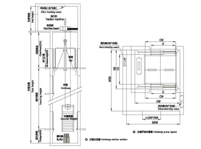
載貨電梯土建示意圖


載貨電梯
載貨電梯 2019-4-15 本文被閱讀 4901 次
| 上一條:載貨電梯 | 下一條:中瑋星悅城蘭庭 |
















