Debris elevator use industrial computer(PLC) or computer control,complete specifications,novel structure,fine workmanship,with safe,reliable,stable,easy to operate the car and landing doors made of high quality stainless steel plate production lines,luxury and beauty, widely used in hotels, renaurants and other units, ls popular among customers.

The advantageous perform ances
Electric lock function: call the base station is equipped with electric locks ladder box, used to start and shut down the elevator control circuit;
Run fault protection function: When outside the normal run time of 10 seconds, the elevator stopped,to prevent burn out the motor;
Contactor adhesion protection: If contactor coil power disconnected contats unable to prevent the re-run to ensure safety;
Call adder response function: Press the call elevator button, the call number elevator floor button light,light off the station after the revocation of memory;
Running dilrection of the display: the direction of the arrow up and down the line-emiting display;
Floor display: run to the elevator floor by the digital display.
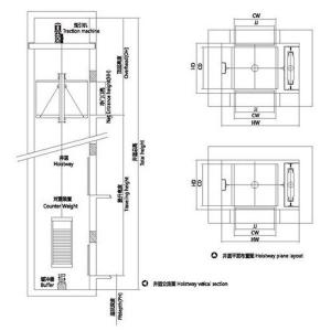
DEBRIS ELEVATOR CONSTRUCTION PARAMETERS


| 上一條:MOVING WALK | next:Business license |














